生野区 F邱(新築工事)
STEP0 施主
初顔合わせ
○ご夫婦、小学生になる二人の娘さんの4人家族。○現在の家が手狭なため、新しく家を建てたい。
お客様のこだわり
○2階LDKは仕切りのない大空間。○自然素材を使い、日当たりと風通しのいい家。
○オープンキッチンがいいが換気扇は隠したい。作りつけの食器棚。
○子供の成長に合わせた間取り。
敷地調査
設計スタッフが現地へ行き、敷地の様子を確認します。土地探し
木村工務店では、日住サービス成田さんを当社の不動産窓口として、土地探しのお手伝いもさせて頂いております。
資金計画
ご要望の方は、㈱ビジネスアスリートの後藤さんによるファイナンシャルプランニングを受けることも出来ます。
STEP1 要望事項 F邱のこだわり
設計:川本そして社長も交えてお客様のこだわりや要望をお伺いします
直接行き来できるようにしたい。
○洗面所と脱衣スペースを分けたい。また出来れば洗面台は親子2人並んで
使えるくらいの大きさがあると嬉しいです。
○ベランダは、雨でぬれないように庇がほしい
○玄関わきに収納がほしい。
○階段の広さ形状も。現在使用中の冷蔵庫、洗濯機などが運び込めるかどうかを相談したい。
お客様からの具体案
○風呂場、洗面所、脱衣スペースといった水回り設備をキッチンから直接行き来できるようにしたい。
○洗面所と脱衣スペースを分けたい。また出来れば洗面台は親子2人並んで
使えるくらいの大きさがあると嬉しいです。
○ベランダは、雨でぬれないように庇がほしい
○玄関わきに収納がほしい。
○階段の広さ形状も。現在使用中の冷蔵庫、洗濯機などが運び込めるかどうかを相談したい。
STEP2 計画予算
「計画書」作成
設計:川本による「現状図面」と「たたき台」作成、○お客様のこだわりと現状の様子を整理し作成・打ち合わせを重ねて「計画案」へ


「概算見積書」作成
○見積工事部長:冨枡による「概算見積書」作成STEP3 合意
基本設計合意
以降の作業から費用が発生します○設計契約を交わします

設計費の1/2のお振込みが必要になります。
基本設計図
「計画案」を具体的にした「基本設計図」模型を見ながら改めて設計図の考察を行います。
○お手持ちの家具や照明の確認
照明はお客様支給 家具は新調されました。
STEP4 実施設計
地盤調査
地盤調査報告書・地盤判定検査シート作成
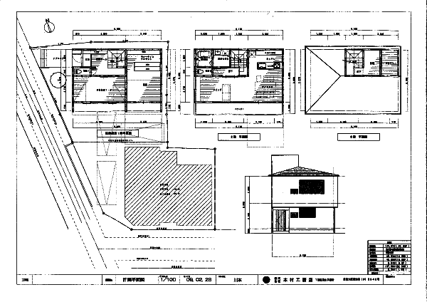
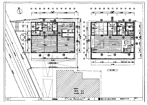
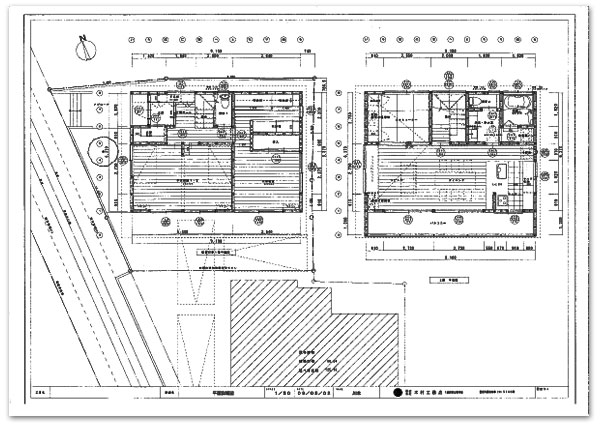
実施設計図 家を造るための図面
○ショールームへのご来場(キッチン・洗面・WC・玄関戸など)
○展開図を見ながら空間のイメージを共有化

地盤調査報告書・地盤判定検査シート作成
実施設計図 家を造るための図面
○ショールームへのご来場(キッチン・洗面・WC・玄関戸など)
○展開図を見ながら空間のイメージを共有化

建築確認申請
建築に必要な申請書類を作成・提出します。STEP5 見積り
見積り
○見積調整の比較見積内容が変わる度に比較表を提出。お施主さんの価値観と金額を比べて調整
○最終「見積書」


STEP6 契約
工事請負契約
○工事請負契約を交わします請負金額のお支払い時期はお話し合いで決定します。目安としては
「契約・着工・中間・引渡し」時を区切りとして、3・4回に分けて
お支払い頂く ことが多くございます。

○現場監督との初顔合わせ → 担当監督:池尾
○工事のスケジュール(工程)を作成
定例打ち合わせ・施主検査・引渡しといった日程も決定
挨拶回り
お施主さんと現場監督・設計者で、ご近所の皆様に工事の挨拶に参ります。STEP7 現場監督
現場定例打ち合わせ
○お施主さん・業者さん(大工さん)・現場監督設計担当による現場での週一回の打ち合わせ
社長や工事部長が参加する場合も
※工事に関するご質問・指摘などもお伝え下さい。
追加変更
○現場定例打ち合わせの際、追加変更の提出STEP8 職人
地鎮祭
土地の神を鎮め、敷地に家を建てることの許しを得て、ご家族の安泰と工事の安全を祈願します。
上棟式
棟が上がったことを喜び感謝し、工事に関する人々が一同に会してお祝いをします。
○上棟前に当社加工場での木材刻みを見学
○床材の加工を奈良県丸岡木材にて見学

大工
○15名ほどの専属大工が在中手伝い
○多能工として5名が在中精親会
○協力業者の皆様による会。現在39社が会員STEP9 完成~引渡し 家
あんしん瑕疵保証(基礎配筋・構造)
構造検査
○木構造建築研究所の田原さん立会社内検査
○社長・工事部長・設計担当・現場監督による現場のダメだしチェック
施主検査
気になるところをご指摘下さい引渡し
○業者による器具説明○取扱説明書・工事写真などをお渡し
○施工後 造園工事
ご家族で新居のシンボルツリーを選びに行かれました。海平造園の社長さんと設計の川本も動向。
最終的に緑が落ちないシマトネリコを選ばれました。