

日本での住まいを所有する場合のスタンダードである
「郊外」「新築」「一戸建て」という解答とは違う、
「都心」「中古・改装」「長屋」にて解決した計画である。
大阪キタの中心地である梅田駅より徒歩15分、
最寄の地下鉄より徒歩10分を切る利便性の高い立地ながら、
大通りからの内に入ると、古くからの長屋が残る地域である豊崎。
ここで売りに出されていた、築年数は不明、調べれる範囲での記録としては
東京オリンピックが開催された年(昭和39年)に増築工事をしている古い建屋を購入した。
先に内部解体を済ませ現況の構造体・設備関係の状態をしっかり見定めた後に、詳細設計・
見積りを進め、現況建基法を満たす構造補強、省エネ等級4の断熱材などの基本性能では
新築と同じ基準を確保したうえで、仕上げ・空間の作り方を、肯定的な「これで良いよね」
を物差しとして決定していった。
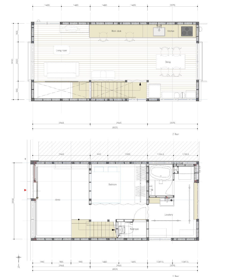
内部空間は、カーテンにより状況に応じて、柔らかく閉じる・開くを選択する事として、
扉を設置するのは、浴室とトイレのみとした。
また、床面積からすれば、少し広めにとった玄関土間と、
階段部分に合わせてとった吹き抜けも設けている。
この事で壁面・建具工事の簡略化というコスト面でのメリットと共に、
限られた空間を出来る限り広く、上下階も含めて繋げて住まう事を負担を少なく可能にしている。
その一包みの空間の中、古い長屋の解体時に残しておいた建具や床板などを、
単純な再利用だけでなく場所・用途を変えて散りばめている。
住人の日々の生活・趣味の道具なども「見せる収納」を基本として、
これまでの歳月を経た骨格を元にして、小さな長屋ながら、
夫婦2人の新しい暮らしを大きく包んでくれる住まいとなる様に計画した。
設計:松村一輝建築設計事務所
施工:木村工務店(現場監督/大村建 大工/木南工務店)
撮影:増田好朗
